Professionally managed by Oaknest Property Management. Your nest chapter starts here.
Freshly updated and filled with natural light, this charming coastal home offers polished timber floors, generous living spaces and a huge backyard perfect for entertaining and all just just moments from the beach.
For convenience, you can also book your inspection directly through our website:
www.oaknestproperty.com.au/register-for-an-inspection-rent
Recently refreshed and beautifully presented, this home combines comfort, character and practicality. With split-system heating and cooling installed in every bedroom, a huge undercover verandah, and a secure backyard ideal for children or pets, this property delivers relaxed living with space to enjoy both indoors and out.
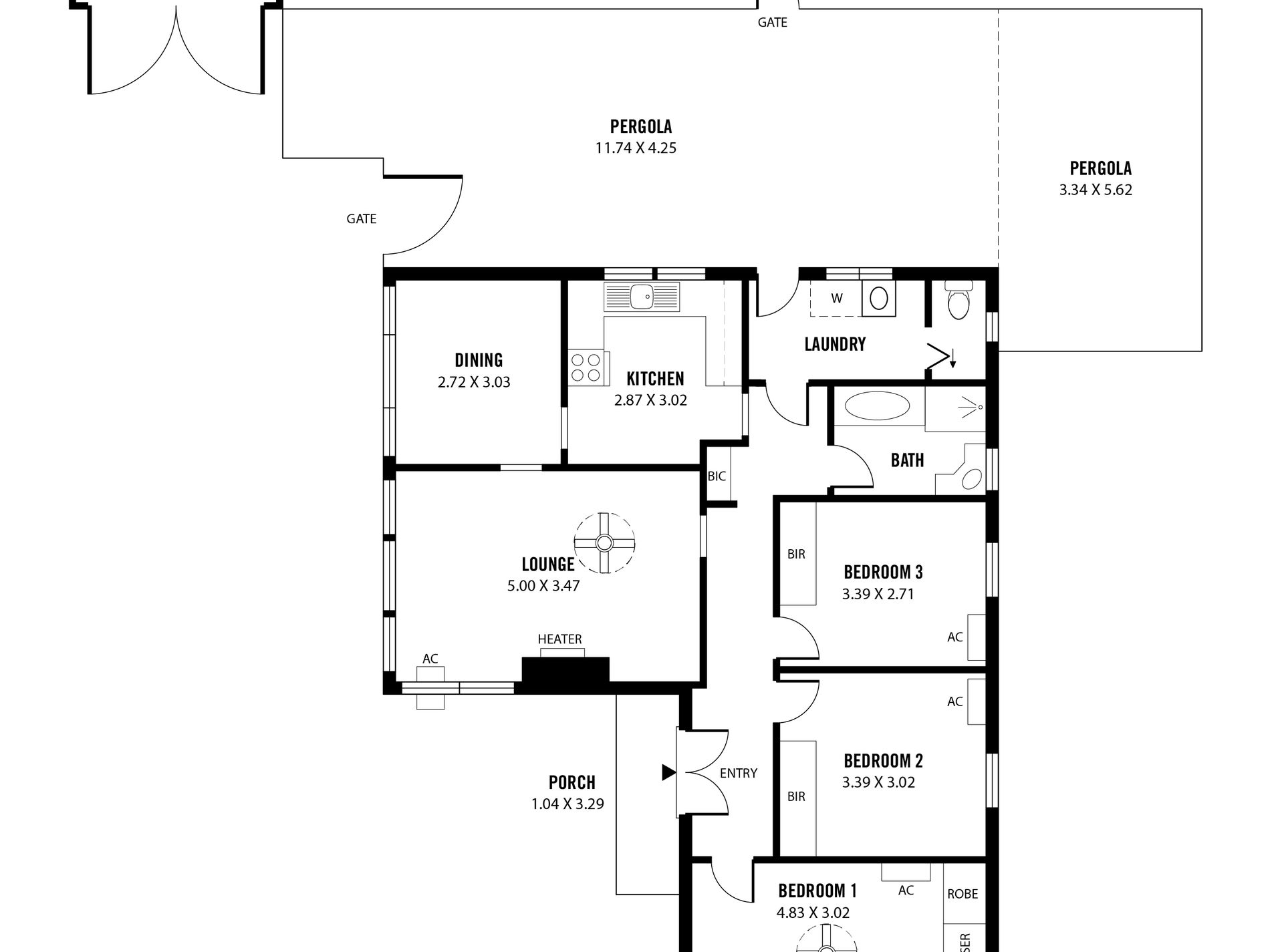
The Living Areas
The spacious living room is filled with beautiful natural light and offers year-round comfort with a gas heater, cooling system and ceiling fan. This inviting space is perfect for relaxing with family or entertaining guests.
A separate dining room provides another light-filled space ideal for family meals or gatherings.
The kitchen overlooks the rear entertaining area and backyard, allowing you to enjoy the garden outlook while preparing meals. It includes a gas cooktop and a functional layout with easy access to the dining area.
The bedrooms
The home offers three comfortable bedrooms designed for both practicality and comfort.
All bedrooms include built-in robes and brand new split system heating and cooling units for individual climate control.
The master bedroom also includes a ceiling fan for added comfort.
The features
• Three bedrooms with built-in robes
• Brand new split system heating and cooling in every bedroom
• Newly polished floorboards throughout
• Large living room with beautiful natural light
• Gas heater, cooling system and ceiling fan to the living area
• Separate light-filled dining room
• Kitchen with a window outlook to the rear entertaining area and yard
• Gas stove top
• Bathroom with bathtub
• Separate WC
• Large laundry
• Huge undercover rear verandah for year-round entertaining
• Large backyard with fire pit area
• Fenced separation between the entertaining area and yard for added safety
• New lawn with mowing and edging included in the rent
• Tenants are responsible for watering, weeding and keeping gardens tidy
• Fruit tree and pleasant established gardens
• Free-standing garage suitable for one car or storage
• Circular driveway allowing easy entry and exit
• Extensive off street parking
The location
Enjoy an exceptional coastal lifestyle with transport, shops and the beach all within easy reach.
• Bus stop directly outside the home
• Warradale Railway Station is approximately a 10-minute walk away, providing direct services to the city
• Seaford train line connecting the Brighton area to Adelaide CBD
Nearby destinations include:
• Brighton Beach approximately 2 minute drive or around 10 minute walk
• Brighton Train Station approximately 850 m away, about a 10 minute walk
• Westfield Marion approximately 5 minute drive
• Nearest supermarkets including Coles and Woolworths at Westfield Marion approximately 5 minutes
• Adelaide CBD approximately 16 km away with train travel around 23 minutes from Brighton station
Local schools include:
• Brighton Primary School
• Warradale Primary School
• Seaview High School
• Brighton Secondary School
• Christ the King School
• McAuley Community School
The terms and conditions
• Bond: 4 weeks rent
• Rent payable fortnightly in advance
• Lease term: 12 months
• Water supply and usage charges apply
• Gas charges apply
• Tenant to connect electricity and internet
pets - considered upon application
How to rent this property
Please register your interest in this property and you will be notified of the next available viewing time.
You can also book your inspection directly at:
www.oaknestproperty.com.au/register-for-an-inspection-rent
Registration ensures you receive instant updates if inspection times change or new times are added. An online application link will be sent to you automatically. You are welcome to apply prior to viewing, however processing will only occur once you have inspected the property and confirmed your interest.
If you have any questions, please feel free to contact us. We are more than happy to discuss details with you.
RLA 274353
Please note
The details provided have been sourced from a variety of suppliers. While every effort has been made to ensure accuracy, we cannot guarantee the information is correct and accept no liability for any errors or omissions. This includes, but is not limited to, property size, floor plans, building age and condition and listed inclusions or exclusions. All interested parties should make their own enquiries and seek independent legal advice.
Features
- Air Conditioning
- Split-System Air Conditioning
- Split-System Heating
- Outdoor Entertainment Area
- Shed
- Built-in Wardrobes





























