Oaknest Property – The Key to Your New Nest
A peaceful no-through street position with space, comfort and future potential
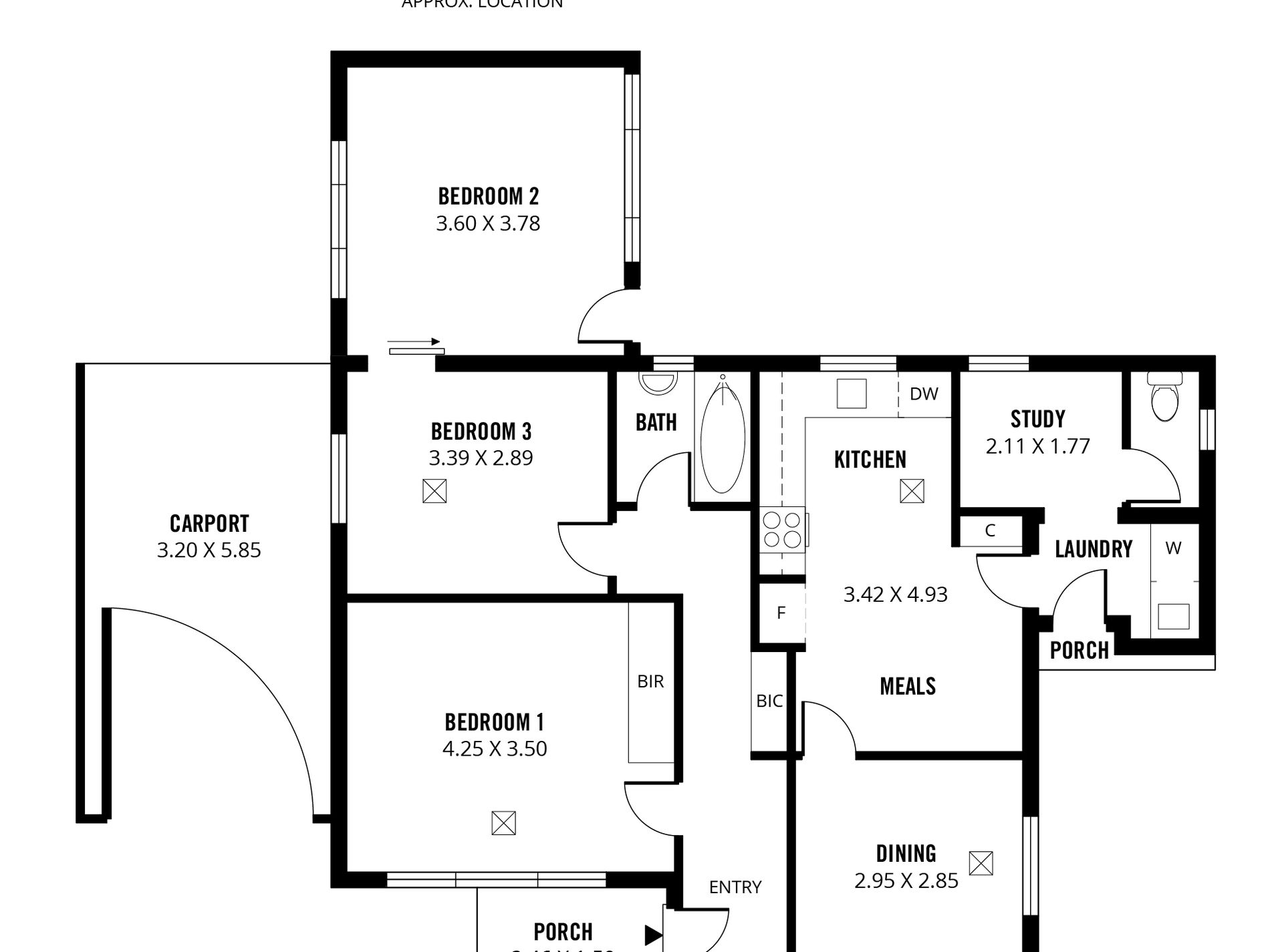
Welcome to 17 Farr Street, privately set in a quiet no-through road of Woodville North. Sitting on approximately 750 sqm, fully fenced and neatly presented, this home offers immediate comfort along with genuine scope to renovate, extend or develop in the future subject to consents. It is an ideal first home, a smart investment or a well-located foundation for a future build.
Fresh paintwork, new carpet, an updated Yeomann & Haskell kitchen, upgraded electrical wiring and three-phase power make the home comfortable and secure from day one.
The Living Space
A warm, relaxed home with lovely natural light.
The lounge features the original fireplace as a charming focal point. It is currently ornamental but may offer potential for reinstatement subject to the usual professional checks.
Large front windows fill the space with soft, filtered light, complemented by a calm, neutral palette.
The dining area sits comfortably between the lounge and kitchen and offers an easy setting for gatherings and everyday meals.
The upgraded kitchen includes fresh cabinetry, excellent storage, a dishwasher and a cheerful sky-blue splashback. A dedicated meals area enhances the practical flow of the home.
A separate study nook provides a flexible zone for working from home or study needs.
Ducted reverse-cycle cooling ensures year-round comfort.
The Bedrooms
All three bedrooms feel peaceful and inviting.
The main bedroom includes built-in robes and ample space for a king bed.
Bedroom two is also spacious with a lovely garden outlook and door straight out to the garden.
Bedroom three offers flexibility as a nursery, guest room or home office.
Under the new carpet, original floorboards are ready for future restoration if desired.
Features You Will Love
Quiet no-through street
Approx. 750 sqm fully fenced allotment
Freshly painted with new carpet
Original fireplace with reinstatement potential
Updated kitchen with meals area and dishwasher
Study nook
Ducted reverse-cycle cooling
Main bedroom with built-in robes
Upgraded electrical wiring
Three-phase power
Ready for future energy upgrades such as solar and battery
Single carport plus plenty of off-street parking
Rear garage shed with power
North-facing rear garden
Mature trees creating a tranquil backyard setting
Ample space for play, pets, vegetable gardens with a cubby house already in place.
Development or extension potential subject to STPC & STCA
Location Perks
A well-connected western suburb with excellent access to shopping, schooling, transport and recreation.
Walking distance to:
Arndale Shopping Centre approx. 800 metres
Local bus routes
Woodville Train Station approx. 1.4 km
Easy access to:
Westfield West Lakes approx. 12 minutes
Semaphore Beach approx. 15 minutes
North Adelaide approx. 15 minutes
Adelaide CBD less than 10 km
Adelaide Airport approx. 20 minutes
Nearby facilities include Woodville Oval, the St Clair Recreation Centre, cinemas, eateries and multiple schooling options.
Do Not Miss This Opportunity
Homes in quiet pockets of Woodville North with generous land and future flexibility are increasingly rare. Whether you choose to move in, modernise, lease out or explore future development subject to approvals, this home presents long-term appeal and strong potential.
For Investors
Ask us for a no-obligation rental appraisal and discover the full potential of this property.
We take your investment to the ‘nest’ level!
Property Information
Council: City of Charles Sturt
Land size: approx. 750 sqm
Year built: 1955
Zoning: GN - General Neighbourhood
SA Water $191.45 pq
Council rates: $1395.90 pa
RLA 274353
The information provided has been sourced with care; however, Oaknest Property does not guarantee its accuracy and accepts no liability for errors or omissions. Interested parties are encouraged to make their own enquiries and seek independent advice.
Features
- Ducted Cooling
- Ducted Heating
- Fully Fenced
- Dishwasher































